Oferujemy do sprzedaży atrakcyjne mieszkanie zlokalizowane na Ruczaju , przy ul Lubostroń. Nieruchomość znajduje się na IV piętrze ( V kondygnacji) zadbanego budynku mieszkalnego z 2006 roku. W budynku ochrona 24/h, cichobieżna winda, garaże.
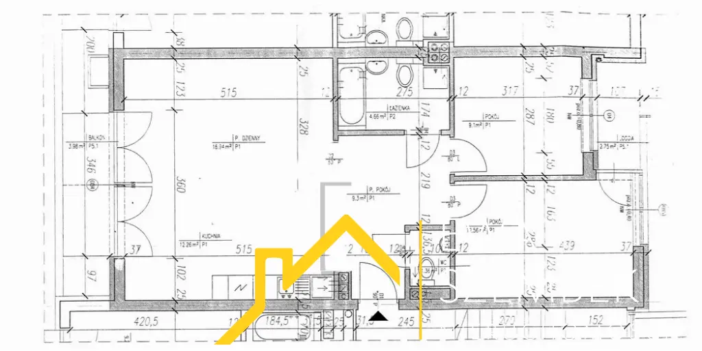
Nieruchomość o pow. 65,69 m2 składa się z dwóch oddzielnych widnych sypialni, salonu z aneksem kuchennym z wyjściem na 2 balkony , łazienki wraz z WC, garderoby, osobnego WC, komunikacji.
Apartament 2 stronny, bardzo jasny. Na podłodze położone dębowe deski, w kuchni oraz w łazience gres. Ogrzewanie i woda z MPEC- u . Czynsz ok. 900 zł
Wyjątkowa nieruchomość dla klienta poszukującego mieszkania na własne potrzeby mieszkalne. Do mieszkania przynależy miejsce postojowe w garażu podziemnym za dodatkową opłatą 50 000 zł
Polecam i zapraszam na prezentację.
NIERUCHOMOŚĆ:
-Apartament z 2 sypialniami, salonem z aneksem kuchennym łazienką, WC i komunikacją. Do mieszkania przynależą 2 balkony z widokiem na zieleń.
-Pełna własność z księgą wieczystą.
-Apartament dla klienta poszukującego mieszkania w otoczeniu zieleni. Mieszkanie 2 stronne
BUDYNEK :
-z 2006 ROKU
- Po termoizolacji ,
KONTAKT:
Urszula Bugajska 530 260 261
Biuro nieruchomości Szembek Ewa, Grodzka 41
Niniejsza oferta nie jest ofertą w rozumieniu K.C.
We offer for sale a unique apartment located in Ruczaj area - Lubostroń Street. The property is located on the first floor of a building house from 2006
The apartment of 65,69 m2 consists of 2 spacious bright room, open bright kitchen anex with livingroom, bathroom, communication. The apartment includes a garage.
Apartment with the highest quality materials: oak parquet, . Heating MPEC
Exceptional property for a discerning client ideal for own residential needs or investment.
- Biuro Kraków
- ul. Grodzka 41
- Pn-Pt, 9-17
- +48 604 437 688
Lubostroń/ 66m2/ wyjątkowy apartament 66 m2 / 2 balkony/ 4 piętro
WróćMieszkanie na sprzedaż Kraków
66.00 m²
Lubostroń/ 66m2/ wyjątkowy apartament 66 m2 / 2 balkony/ 4 piętro












Polecane podobne oferty
470.00 m²
3 000 000 zł
- 11 pokoje
- 10 sypialnie
- 3 łazienki
64.00 m²
1 449 000 zł
- 3 pokoje
- 2 sypialnie
- 1 łazienka
67.30 m²
829 000 zł
- 4 pokoje
- 3 sypialnie
- 2 łazienki
22.50 m²
449 000 zł
- 1 pokój
- 1 sypialnia
- 1 łazienka

Zapisz się do newslettera
Szukasz mieszkania, domu lub lokalu, ale nie wiesz co wybrac?
Nasi Agenci są do Państwa dyspozycji. Pomożemy i kompleksowo przeprowadzimy zakup lub sprzedaż:
- mieszkania
- domu
- lub wynajmu lokalu