Wykończone mieszkanie 3 pokojowe w centrum Krakowa, 50,5m2

Wróć

Mieszkanie na sprzedaż Kraków

50.50 m²

Wykończone mieszkanie/50,5m2/3 pokoje/na poddaszu/ul. Grzegórzecka

704 340 zł

13 947,33 zł/m²

Opis nieruchomości

Przytulne mieszkanie na poddaszu | 3 pokoje | 50,5m²

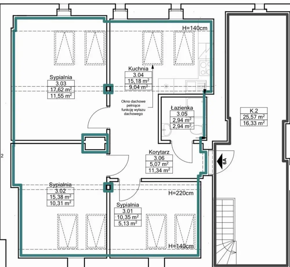
Na sprzedaż oferujemy klimatyczne mieszkanie o powierzchni 50,5 m², zlokalizowane na poddaszu kameralnego budynku w atrakcyjnej części miasta. To idealna propozycja dla osób ceniących niepowtarzalny klimat poddaszy, funkcjonalny układ pomieszczeń oraz wygodę codziennego życia.

Układ pomieszczeń:

- trzy oddzielne pokoje, zapewniające komfort i prywatność,

- salon z aneksem kuchennym, będący sercem mieszkania i idealną przestrzenią do wspólnego spędzania czasu,

- łazienka z kabiną prysznicową i toaletą.

Dzięki przemyślanemu rozmieszczeniu okien dachowych, wnętrze jest doskonale doświetlone, a skosy dodają mu wyjątkowego uroku i ciepłego charakteru.

Komfort i udogodnienia:


- ogrzewanie z pieca gazowego dwufunkcyjnego – pełna niezależność i kontrola kosztów,

- przygotowanie pod instalację klimatyzacji,

- mieszkanie w dobrym stanie technicznym, gotowe do zamieszkania lub wynajmu.

Dlaczego warto:

To mieszkanie łączy w sobie urok i funkcjonalność. Doskonale sprawdzi się jako:

- inwestycja pod wynajem,

- lokum dla pary lub małej rodziny,

- przytulna przestrzeń dla osób pracujących zdalnie.


Możliwość kupna drugiego mieszkania 80m2 na 1 piętrze w tej samej kamienicy.


Kontakt: Adam Wielgórka 690 230 890
Biuro Nieruchomości SZEMBEK EWA
GRODZKA 41
Powyższa oferta ma charakter informacyjny i nie stanowi oferty handlowej w rozumieniu Kodeksu Cywilnego oraz innych właściwych przepisów prawnych.

Nota prawna

Opis oferty zawarty na stronie internetowej sporządzany jest na podstawie oględzin nieruchomości oraz informacji uzyskanych od właściciela, może podlegać aktualizacji i nie stanowi oferty określonej w art. 66 i następnych K.C. Numer licencji pośrednika odpowiedzialnego zawodowo 2240.

Polecane podobne oferty

Miniaturka oferty
sprzedaż Mieszkanie
68.00 m²

1 208 429 zł

  • 4 pokoje
  • 3 sypialnie
  • 2 łazienki
Miniaturka oferty
sprzedaż Mieszkanie
56.00 m²

894 375 zł

  • 3 pokoje
  • 2 sypialnie
  • 1 łazienka
Miniaturka oferty
sprzedaż Mieszkanie
Miniaturka oferty
sprzedaż Mieszkanie
37.00 m²

1 232 800 zł

  • 2 pokoje
  • 2 sypialnie
  • 1 łazienka
Miniaturka oferty
sprzedaż Mieszkanie
108.00 m²

1 630 200 zł

  • 4 pokoje
  • 4 sypialnie
  • 1 łazienka
Miniaturka oferty
sprzedaż Mieszkanie
20.00 m²

547 250 zł

  • 1 pokój
  • 1 sypialnia
  • 1 łazienka
Biuro nieruchomości Kraków. Pani Agent.

Zapisz się do newslettera

Szukasz mieszkania, domu lub lokalu, ale nie wiesz co wybrac?

Nasi Agenci są do Państwa dyspozycji. Pomożemy i kompleksowo przeprowadzimy zakup lub sprzedaż:

  • mieszkania
  • domu
  • lub wynajmu lokalu


Wyrażam zgodę na kontakt emailowy oraz telefoniczny