Dwupak inwestycyjny: 3 pokojowe 50,5m2 i 3 pokojowe 80,5m2 w centrum Krakowa

Wróć

Mieszkanie na sprzedaż Kraków

130.50 m²

Dwupak inwestycyjny/6 pokoi/130,5m2/wykończone/ul. Grzegórzecka

1 866 000 zł

14 298,85 zł/m²

Opis nieruchomości

Dwupak inwestycyjny | ul. Grzegórzecka | Kraków | 130,5 m² + 24 m² piwnicy

Na sprzedaż wyjątkowy pakiet dwóch mieszkań w atrakcyjnej lokalizacji w Krakowie – idealna propozycja dla inwestora poszukującego nieruchomości z wysokim potencjałem najmu lub lokaty kapitału.

W skład oferty wchodzą dwa lokale mieszkalne:

Mieszkanie 1 – 80,5 m² + 24 m² piwnicy

Przestronne, funkcjonalne mieszkanie położone na pierwszym piętrze kameralnego budynku w jednej z najbardziej pożądanych lokalizacji Krakowa.

Trzy niezależne, klimatyzowane pokoje,

Wspólna kuchnia, łazienka i salon,

Nowoczesny piec gazowy dwufunkcyjny,

Duża piwnica (24 m²) – idealna na magazyn, winiarnię lub przestrzeń rekreacyjną.

Doskonała propozycja inwestycyjna – zarówno pod wynajem długoterminowy, jak i do zamieszkania.


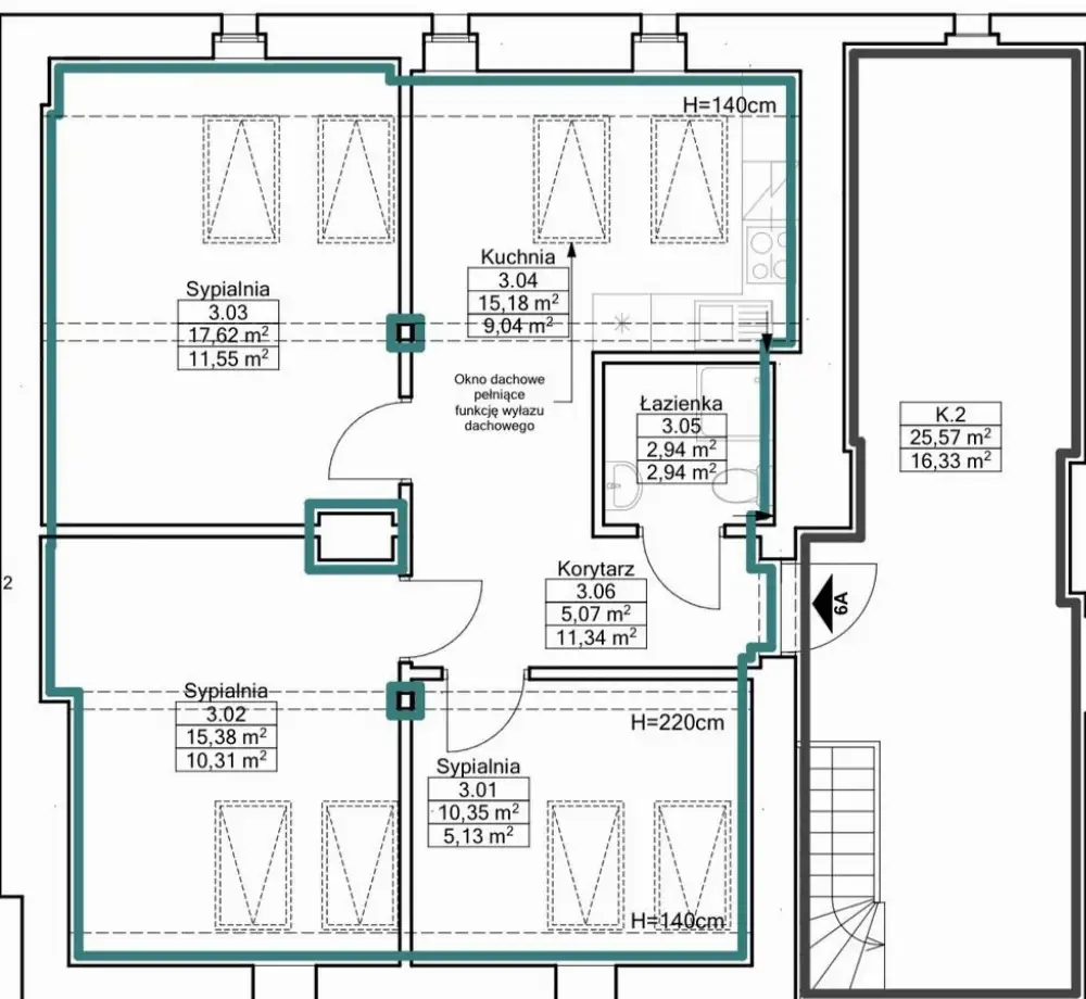
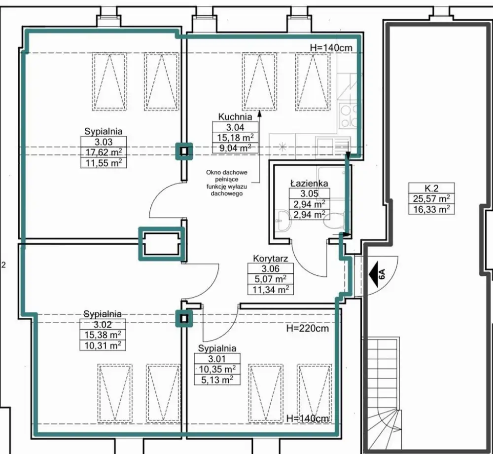
Mieszkanie 2 – poddasze | 50,5 m²

Klimatyczne i przytulne mieszkanie zlokalizowane na poddaszu kameralnego budynku, łączące niepowtarzalny klimat z funkcjonalnością.

Trzy niezależne pokoje,

Salon z aneksem kuchennym,

Łazienka z prysznicem,

Ogrzewanie gazowe (piec dwufunkcyjny), możliwość montażu klimatyzacji,

Gotowe do zamieszkania lub wynajmu.

Świetny układ i kameralny charakter czynią to mieszkanie doskonałą propozycją dla par, małych rodzin lub jako mieszkanie inwestycyjne typu co-living.

Dlaczego warto zainwestować:

Dwa niezależne mieszkania o łącznej powierzchni 130,5 m² + 24 m² piwnicy,

Obie nieruchomości w bardzo dobrym stanie technicznym, gotowe do wynajmu,

Wysoka stopa zwrotu – możliwość generowania kilku niezależnych źródeł dochodu,

Pożądane lokalizacje z szybkim dostępem do centrum i uczelni,

Nieruchomości z potencjałem wzrostu wartości w czasie.

Cena łączna pakietu: 1 866 000 zł
Łączna powierzchnia użytkowa: 130,5 m²
Lokalizacje: ul. Grzegórzecka + okolica centrum

Nota prawna

Opis oferty zawarty na stronie internetowej sporządzany jest na podstawie oględzin nieruchomości oraz informacji uzyskanych od właściciela, może podlegać aktualizacji i nie stanowi oferty określonej w art. 66 i następnych K.C. Numer licencji pośrednika odpowiedzialnego zawodowo 2240.

Polecane podobne oferty

Miniaturka oferty
sprzedaż Mieszkanie
75.00 m²

1 870 000 zł

  • 3 pokoje
  • 3 sypialnie
  • 1 łazienka
Miniaturka oferty
sprzedaż Mieszkanie
75.00 m²

1 200 000 zł

  • 0 pokój
  • 3 sypialnie
  • 1 łazienka
Miniaturka oferty
sprzedaż Mieszkanie
61.00 m²

1 350 000 zł

  • 4 pokoje
  • 3 sypialnie
  • 1 łazienka
Miniaturka oferty
sprzedaż Mieszkanie
45.00 m²

989 500 zł

  • 3 pokoje
  • 2 sypialnie
  • 1 łazienka
Miniaturka oferty
sprzedaż Mieszkanie
52.50 m²

999 600 zł

  • 3 pokoje
  • 2 sypialnie
  • 1 łazienka
Miniaturka oferty
sprzedaż Mieszkanie
88.00 m²

1 878 700 zł

  • 4 pokoje
  • 4 sypialnie
  • 2 łazienki
Biuro nieruchomości Kraków. Pani Agent.

Zapisz się do newslettera

Szukasz mieszkania, domu lub lokalu, ale nie wiesz co wybrac?

Nasi Agenci są do Państwa dyspozycji. Pomożemy i kompleksowo przeprowadzimy zakup lub sprzedaż:

  • mieszkania
  • domu
  • lub wynajmu lokalu


Wyrażam zgodę na kontakt emailowy oraz telefoniczny