Skorzystaj z bezpłatnej konsultacji u eksperta kredytowego i sprawdź możliwości kredytowe dla tej nieruchomości w ofertach wielu banków.
Umów się na bezpłatną konsultację Dowiedz się więcej20.00 m²
Powierzchnia
1
Pokój
parter
Piętro
18.11
Zaktualizowano
Opis nieruchomości
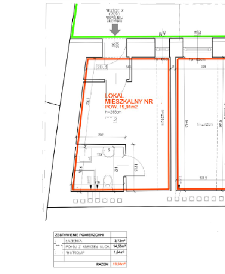
ok. Kolberga, 20 m2, STUDIO, stan deweloperski, parter
OFERUJEMY PAŃSTWU DO SPRZEDAŻY mieszkanie deweloperskie, nowe mieszkanie z możliwością wykończenia pod klucz o powierzchni 20m2 mieszczące się na parterze wyremontowanej kamienicy z windą w Krakowie w centrum Starego Miasta. Mieszkanie składa się z wiatrołapu, łazienki, pokoju z aneksem kuchennym. Wyposażone jest w nową instalację elektryczną, wodno- kanalizacyjną, teletechniczną, instalację kanalizacji ogólnospławnej, instalację centralnego ogrzewania oraz ciepłej wody użytkowej opartych na własnej wymiennikowni MPEC, a także instalację. Wentylacja częściowo grawitacyjna, częściowo mechaniczna.
Budynek wybudowany w technologii tradycyjnej. Ławy fundamentowe betonowe, ściany fundamentowe – z cegły pełnej. Ściany nośne wszystkich kondygnacji nadziemnych murowane z cegły pełnej oraz z bloczków ceramicznych. Stropy - żelbetowe. Ścianki działowe w większości murowane, częściowo z płyt gipsowo-kartonowych, stolarka okienna w większości drewniana. Więźba dachowa drewniana, pokrycie dachu - blacha stalowa, powlekana na tzw „rąbek stojący”. Drzwi wejściowe do lokali - drewniane. W BUDYNKU KILKA INNYCH MIESZKAŃ O RÓŻNYM METRAŻU NA RÓŻNYCH PIĘTRACH. Doskonała lokalizacja i dobry dojazd w każdym kierunku miasta.
Polecam i zapraszam na prezentację.
Kontakt; Urszula Bugajska 530 260 261
Biuro Nieruchomości SZEMBEK EWA
GRODZKA 41
Powyższa oferta ma charakter informacyjny i nie stanowi oferty handlowej w rozumieniu Kodeksu Cywilnego oraz innych właściwych przepisów prawnych. Numer licencji pośrednika odpowiedzialnego
Budynek wybudowany w technologii tradycyjnej. Ławy fundamentowe betonowe, ściany fundamentowe – z cegły pełnej. Ściany nośne wszystkich kondygnacji nadziemnych murowane z cegły pełnej oraz z bloczków ceramicznych. Stropy - żelbetowe. Ścianki działowe w większości murowane, częściowo z płyt gipsowo-kartonowych, stolarka okienna w większości drewniana. Więźba dachowa drewniana, pokrycie dachu - blacha stalowa, powlekana na tzw „rąbek stojący”. Drzwi wejściowe do lokali - drewniane. W BUDYNKU KILKA INNYCH MIESZKAŃ O RÓŻNYM METRAŻU NA RÓŻNYCH PIĘTRACH. Doskonała lokalizacja i dobry dojazd w każdym kierunku miasta.
Polecam i zapraszam na prezentację.
Kontakt; Urszula Bugajska 530 260 261
Biuro Nieruchomości SZEMBEK EWA
GRODZKA 41
Powyższa oferta ma charakter informacyjny i nie stanowi oferty handlowej w rozumieniu Kodeksu Cywilnego oraz innych właściwych przepisów prawnych. Numer licencji pośrednika odpowiedzialnego
Szczegóły
Sypialnie
1
Łazienki
1
Informacje
Identyfikator oferty: 3862
Urszula Bugajska
Specjalista ds. sprzedaży i wynajmu mieszkań
Zapytaj o nieruchomość
Podobne nieruchomości
Na podstawie typu, lokalizacji i przedziału cenowego