Skorzystaj z bezpłatnej konsultacji u eksperta kredytowego i sprawdź możliwości kredytowe dla tej nieruchomości w ofertach wielu banków.
Umów się na bezpłatną konsultację Dowiedz się więcejOpis nieruchomości
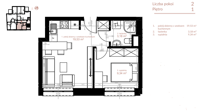
OFERUJEMY PAŃSTWU DO SPRZEDAŻY Stan deweloperski – mieszkania gotowe do indywidualnej aranżacji lub z wykończeniem w różnych metrażach i na różnych piętrach. Proponowane mieszkanie o powierzchni 32m2, składa się z aneksu kuchennego z salonem, osobnej sypialni, przedpokoju i łazienki. Mieści się na I piętrze wyremontowanej pięknie kamienicy z 1933 roku. Stan wykończenia mieszkań deweloperskich i kamienicy:
• Drewniane okna i drzwi wejściowe, wykonane z wysokiej jakości materiałów.
. Stylowe wykończenie elewacji z rekonstrukcją oryginalnego nadświetla oraz płaskorzeźby
. Iluminacja elewacji, ocieplenie elewacji. Ogrzewanie podłogowe we wszystkich lokalach
• Przygotowane instalacje pod montaż klimatyzacji w każdym mieszkaniu
• Ogrzewanie i ciepła woda z sieci miejskiej MPEC, wentylacja mechaniczna typu „Helios”, system przeciwpożarowy i oświetlenie awaryjne. Odnowiona klatka schodowa z zachowaniem (w starej części) oryginalnych detali i lastrykowych posadzek.
• Balkony i przestronne tarasy wykończone płytkami gresowymi na podkładkach, Internet światłowodowy, wideodomofony, system monitoringu.
• Rowerownia dostępna dla mieszkańców z dedykowanym miejscem do ładowania rowerów elektrycznych. Do dyspozycji mieszkańców pozostaje przytulny, zielony ogród – idealna przestrzeń na relaks i odpoczynek od miejskiego zgiełku. Doskonała komunikacja miejska
Zaledwie kilka minut do przystanków tramwajowych i autobusowych. Bliskość uczelni i miejsc pracy. Idealne usytuowanie blisko prestiżowych uczelni: AGH, Uniwersytetu Jagiellońskiego, Politechniki Krakowskiej i Uniwersytetu Pedagogicznego.
Cicha, zielona ulica i elegancki budynek z historią – dla tych, którzy cenią spokój, estetykę i jakość. Do ceny mieszkania deweloperskiego należy doliczyć 8% VAT.
Zapraszam na prezentację.
Kontakt w sprawie oferty tel; Urszula Bugajska 530 260 261
Biuro Nieruchomości SZEMBEK EWA
GRODZKA 41
Numer licencji pośrednika odpowiedzialnego zawodowo 2240. Powyższa oferta ma charakter informacyjny i nie stanowi oferty handlowej w rozumieniu Kodeksu Cywilnego oraz innych właściwych przepisów prawnych.
Szczegóły
Informacje
Urszula Bugajska
Specjalista ds. sprzedaży i wynajmu mieszkań
Zapytaj o nieruchomość
Podobne nieruchomości
Na podstawie typu, lokalizacji i przedziału cenowego