Stare Miasto stan deweloperski mieszkanie sprzedam

Wróć

Mieszkanie na sprzedaż Kraków

30.00 m²

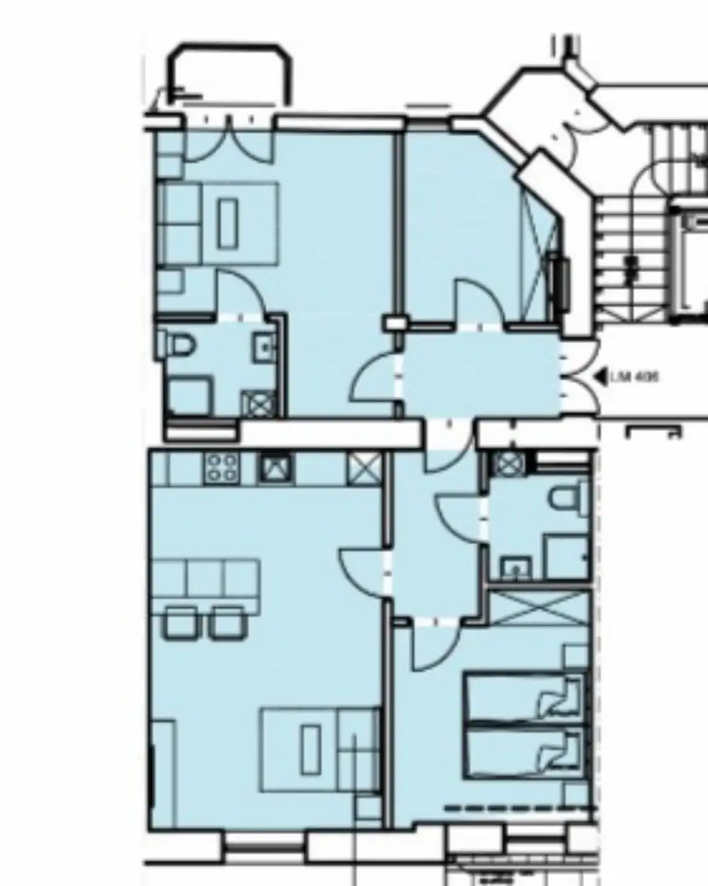
Ok. Długa / ul. Szlak, poddasze 28,74m2 uzytkowej, STUDIO / 2 pokoje, stan deweloperski

540 000 zł

18 000,00 zł/m²

Opis nieruchomości

OFERUJEMY PAŃSTWU DO SPRZEDAŻY MIESZKANIE w stanie deweloperskim na zaadaptowanym poddaszu, możliwość 2 pokoi. Studio o powierzchni całkowitej 34,34 m2 i użytkowej 28,74 m2 na w rejonie ul. Długiej na cichej uliczce w kameralnej kamienicy na III wygodnie wychodzącym piętrze. Kamienica remontowana (klatka schodowa, elewacja) wymiana przyłączy wody i kanalizacji, odrestaurowana stolarka okienna i drzwiowa na klatce schodowej. Mieszkanie składa się aneksu kuchennego z salonem, otwarta przestrzeń, ( oddzielnej sypialni na życzenie ) i łazienki. Doprowadzane do stanu deweloperskiego ( do własnej aranżacji i wykończenia, lub możliwość wykończenia pod klucz ) Mieszkania wyposażone w instalację klimatyzacji, ogrzewanie elektryczne, okna połaciowe i pionowe drewniane, drzwi antywłamaniowe) W cenie sprzedaży 8% VAT. Idealne jako inwestycja pod wynajem. Doskonała lokalizacja i dobry dojazd w każdym kierunku miasta. Zapraszam na prezentację.

Kontakt w sprawie oferty: Urszula Bugajska 530 260 261
Biuro Nieruchomości SZEMBEK EWA
GRODZKA 41

Numer licencji pośrednika odpowiedzialnego zawodowo 2240. Powyższa oferta ma charakter informacyjny i nie stanowi oferty handlowej w rozumieniu Kodeksu Cywilnego oraz innych właściwych przepisów prawnych.

Nota prawna

Opis oferty zawarty na stronie internetowej sporządzany jest na podstawie oględzin nieruchomości oraz informacji uzyskanych od właściciela, może podlegać aktualizacji i nie stanowi oferty określonej w art. 66 i następnych K.C. Numer licencji pośrednika odpowiedzialnego zawodowo 2240.

Polecane podobne oferty

Miniaturka oferty
sprzedaż Mieszkanie
102.00 m²

3 517 275 zł

  • 4 pokoje
  • 3 sypialnie
  • 2 łazienki
Miniaturka oferty
sprzedaż Mieszkanie
33.00 m²

686 983 zł

  • 2 pokoje
  • 1 sypialnia
  • 1 łazienka
Miniaturka oferty
sprzedaż Mieszkanie
60.00 m²

1 995 000 zł

  • 2 pokoje
  • 2 sypialnie
  • 1 łazienka
Miniaturka oferty
sprzedaż Mieszkanie
89.00 m²

1 400 000 zł

  • 4 pokoje
  • 3 sypialnie
  • 1 łazienka
Miniaturka oferty
sprzedaż Mieszkanie
25.00 m²

550 000 zł

  • 1 pokój
  • 1 sypialnia
  • 1 łazienka
Miniaturka oferty
sprzedaż Mieszkanie
Biuro nieruchomości Kraków. Pani Agent.

Zapisz się do newslettera

Szukasz mieszkania, domu lub lokalu, ale nie wiesz co wybrac?

Nasi Agenci są do Państwa dyspozycji. Pomożemy i kompleksowo przeprowadzimy zakup lub sprzedaż:

  • mieszkania
  • domu
  • lub wynajmu lokalu


Wyrażam zgodę na kontakt emailowy oraz telefoniczny