APARTAMENTY w trakcie remontu
OFERUJEMY PAŃSTWU DO SPRZEDAŻY mieszkania o różnym metrażu od 45m2-100m2, 2,3 i 4 pokojowe, na I i II piętrze w ładnym budynku na Starym Mieście w obrębie Plant. WSZYSTKIE LOKALE są z uregulowanym stanem prawnym, wyremontowane w sposób kompleksowy z dwuletnią gwarancją na wykonane prace, doprowadzane do stanu deweloperskiego i z możliwością wykończenia pod klucz.
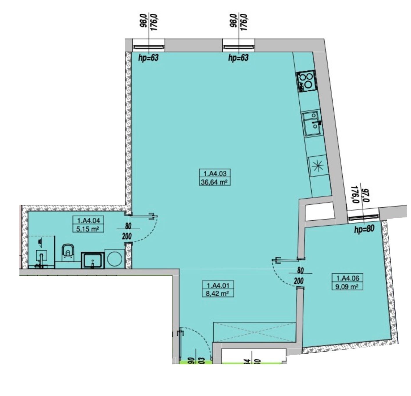
Apartamenty te to niezwykła inwestycja w nieruchomość ulokowaną na spokojnej i klimatycznej ulicy w samym sercu Krakowa - na Starym Mieście przy Plantach. Apartamenty mogą zostać wykończone z dbałością o najmniejsze szczegóły i przy użyciu najwyższej jakości materiałów. Cały obiekt będzie pod stałym dozorem ochrony, portiera, monitoringu. Wszystkie instalacje zostają wymienione, odświeżone zostaną również części wspólne, w budynku cichobieżna winda. Możliwość dokupienia za dodatkową opłata miejsca parkingowego naziemnego bądź podziemnego. Proponowane mieszkanie o powierzchni 87,52 m2, posiada salon z aneksem kuchennym, dwie sypialnie, łazienkę. Mieści się na I piętrze. Idealnie nadaje się dla rodziny lub na najem - dobra lokata kapitału na lata. Doskonała lokalizacja i dojazd w każdym kierunku miasta.
Zapraszam na prezentację.
Kontakt w sprawie oferty; Urszula Bugajska 530 260 261
Biuro Nieruchomości SZEMBEK EWA
Grodzka 41
Numer licencji pośrednika odpowiedzialnego zawodowo 2240
Powyższa oferta ma charakter informacyjny i nie stanowi oferty handlowej w rozumieniu Kodeksu Cywilnego oraz innych właściwych przepisów prawnych.
- Biuro Kraków
- ul. Grodzka 41
- Pn-Pt, 9-17
- +48 604 437 688
Stare Miasto obręb Plant mieszkanie sprzedam
WróćMieszkanie na sprzedaż Kraków
87.00 m²
Stare Miasto/ obręb Plant, 87,52m2, 3 pokoje, I piętro, stan deweloperski

Polecane podobne oferty
55.00 m²
1 250 000 zł
- 2 pokoje
- 2 sypialnie
- 1 łazienka
57.30 m²
1 025 000 zł
- 3 pokoje
- 2 sypialnie
- 1 łazienka
63.00 m²
739 000 zł
- 4 pokoje
- 3 sypialnie
- 1 łazienka
22.50 m²
449 000 zł
- 1 pokój
- 1 sypialnia
- 1 łazienka

Zapisz się do newslettera
Szukasz mieszkania, domu lub lokalu, ale nie wiesz co wybrac?
Nasi Agenci są do Państwa dyspozycji. Pomożemy i kompleksowo przeprowadzimy zakup lub sprzedaż:
- mieszkania
- domu
- lub wynajmu lokalu