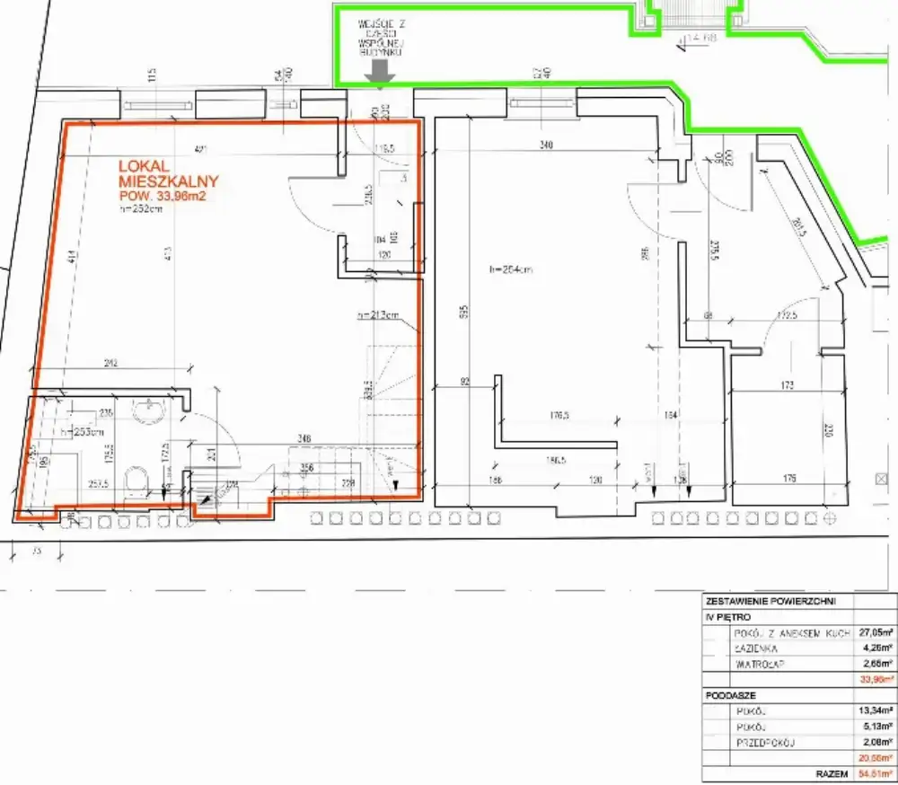
OFERUJEMY PAŃSTWU DO SPRZEDAŻY w stanie deweloperskim z możliwością wykończenia pod klucz mieszkanie o powierzchni 55m2 mieszczące się na IV piętrze i poddaszu w wyremontowanej kamienicy z windą w centrum Starego Miasta w rejonie ul. Szlak, ul. Kolberga. Lokal składa się z aneksu kuchennego z salonem, 2 sypialni, przedpokoju, łazienki i wiatrołapu. Wyposażone jest w instalację elektryczną, wodno- kanalizacyjną, teletechniczną, instalację kanalizacji ogólnospławnej, instalację centralnego ogrzewania oraz ciepłej wody użytkowej opartych na własnej wymiennikowni MPEC, a także instalację. Wentylacja częściowo grawitacyjna, częściowo mechaniczna.
Budynek wybudowany w technologii tradycyjnej. Ławy fundamentowe betonowe, ściany fundamentowe – z cegły pełnej. Ściany nośne wszystkich kondygnacji nadziemnych murowane z cegły pełnej oraz z bloczków ceramicznych. Stropy - żelbetowe. Ścianki działowe w większości murowane, częściowo z płyt gipsowo-kartonowych, stolarka okienna w większości drewniana. Więźba dachowa drewniana, pokrycie dachu - blacha stalowa, powlekana na tzw „rąbek stojący”. Drzwi wejściowe do lokali - drewniane. W BUDYNKU KILKA INNYCH MIESZKAŃ O RÓŻNYM METRAŻU NA RÓŻNYCH PIĘTRACH. Doskonała lokalizacja i dobry dojazd w każdym kierunku miasta.
Polecam i zapraszam na prezentację.
Kontakt; Urszula Bugajska 530 260 261
Biuro Nieruchomości SZEMBEK EWA
GRODZKA 41
Powyższa oferta ma charakter informacyjny i nie stanowi oferty handlowej w rozumieniu Kodeksu Cywilnego oraz innych właściwych przepisów prawnych. Numer licencji pośrednika odpowiedzialnego zawodowo 2240
- Biuro Kraków
- ul. Grodzka 41
- Pn-Pt, 9-17
- +48 604 437 688
Stare Miasto mieszkanie dwupoziomowe sprzedam
WróćMieszkanie na sprzedaż Kraków
55.00 m²
Ok. Kolberga, 55m2, dwupoziomowe, IV piętro, winda, stan deweloperski








Polecane podobne oferty
34.50 m²
755 000 zł
- 2 pokoje
- 1 sypialnia
- 1 łazienka
37.00 m²
980 000 zł
- 1 pokój
- 1 sypialnia
- 1 łazienka
72.00 m²
1 431 000 zł
- 3 pokoje
- 3 sypialnie
- 2 łazienki
67.30 m²
1 075 487 zł
- 3 pokoje
- 2 sypialnie
- 1 łazienka
49.00 m²
388 160 zł
- 1 pokój
- 1 sypialnia
- 0 łazienka
52.80 m²
960 000 zł
- 3 pokoje
- 2 sypialnie
- 1 łazienka

Zapisz się do newslettera
Szukasz mieszkania, domu lub lokalu, ale nie wiesz co wybrac?
Nasi Agenci są do Państwa dyspozycji. Pomożemy i kompleksowo przeprowadzimy zakup lub sprzedaż:
- mieszkania
- domu
- lub wynajmu lokalu