Sprzedaż Mieszkanie

Stare Miasto mieszkanie sprzedam

1 488 960 zł (24 015 zł/m²)
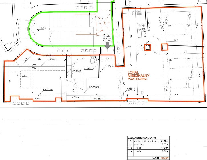
62.00 m²
Powierzchnia
3
Pokoje
4
Piętro
13.02
Zaktualizowano

Opis nieruchomości

Stare Miasto, 62m2 , 3 pokoje, IV piętro, winda, możliwość wykończenia pod klucz

OFERUJEMY PAŃSTWU DO SPRZEDAŻY w stanie deweloperskim z możliwością wykończenia pod klucz mieszkanie o powierzchni 62m2 mieszczące się na IV piętrze ( poddasze) wyremontowanej kamienicy z windą w centrum Starego Miasta w rejonie ul. Szlak, ul. Kolberga. Lokal składa się z aneksu kuchennego z salonem, 2 sypialni i łazienki. Wyposażone jest w instalację elektryczną, wodno- kanalizacyjną, teletechniczną, instalację kanalizacji ogólnospławnej, instalację centralnego ogrzewania oraz ciepłej wody użytkowej opartych na własnej wymiennikowni MPEC, a także instalację. Wentylacja częściowo grawitacyjna, częściowo mechaniczna.
Budynek wybudowany w technologii tradycyjnej. Ławy fundamentowe betonowe, ściany fundamentowe – z cegły pełnej. Ściany nośne wszystkich kondygnacji nadziemnych murowane z cegły pełnej oraz z bloczków ceramicznych. Stropy - żelbetowe. Ścianki działowe w większości murowane, częściowo z płyt gipsowo-kartonowych, stolarka okienna w większości drewniana. Więźba dachowa drewniana, pokrycie dachu - blacha stalowa, powlekana na tzw „rąbek stojący”. Drzwi wejściowe do lokali - drewniane. W BUDYNKU KILKA INNYCH MIESZKAŃ O RÓŻNYM METRAŻU NA RÓŻNYCH PIĘTRACH.

Doskonała lokalizacja i dobry dojazd w każdym kierunku miasta.
Polecam i zapraszam na prezentację.
Kontakt; Urszula Bugajska 530 260 261
Biuro Nieruchomości SZEMBEK EWA
GRODZKA 41

Powyższa oferta ma charakter informacyjny i nie stanowi oferty handlowej w rozumieniu Kodeksu Cywilnego oraz innych właściwych przepisów prawnych. Numer licencji pośrednika odpowiedzialnego zawodowo 2240

Szczegóły

Sypialnie
3
Łazienki
1

Informacje

Identyfikator oferty: 3749
Urszula Bugajska

Urszula Bugajska

Specjalista ds. sprzedaży i wynajmu mieszkań

Zapytaj o nieruchomość

Wyrażenie zgody jest wymagane.

Podobne nieruchomości

Na podstawie typu, lokalizacji i przedziału cenowego

Zobacz wszystkie
Top