Dom z panoramicznym widokiem na wzgórzu – wyjątkowa lokalizacja

Wróć

Dom w górach na sprzedaż

149.00 m²

Dom z panoramicznym widokiem na wzgórzu – wyjątkowa lokalizacja

469 000 zł

3 147,65 zł/m²

Opis nieruchomości

Na sprzedaż dom z panoramą w Rabce-Zdroju – bliźniak w stanie surowym zamkniętym

Oferujemy Państwu na sprzedaż  dom w stanie surowym zamkniętym w zabudowie bliźniaczej, zlokalizowany w malowniczej i spokojnej okolicy Rabki-Zdroju  z widokiem na panoramę okolicy.  Nieruchomość położona jest na działce o powierzchni 370 m² z bezpośrednim dojazdem asfaltową drogą gminną.


To wyjątkowe miejsce w Rabce-Zdroju, cieszące się dużym zainteresowaniem ze względu na swoje walory–  zielona okolica, z dala od miejskiego zgiełku, a jednocześnie z doskonałym dostępem do centrum miasta. W zasięgu kilku minut znajdują się sklepy, szkoły, park zdrojowy oraz liczne trasy spacerowe i rowerowe. To kameralna okolica otoczona zielenią, z piękną panoramą na okoliczne wzgórza i lasy Beskidu Wyspowego,

Miejsce idealne dla osób ceniących ciszę, kontakt z naturą oraz szybki dostęp do centrum Rabki Zdrój – dojazd zajmuje zaledwie kilka minut. W sąsiedztwie znajdują się wyłącznie domy jednorodzinne i tereny zielone, co zapewnia prywatność i wyjątkowy klimat.


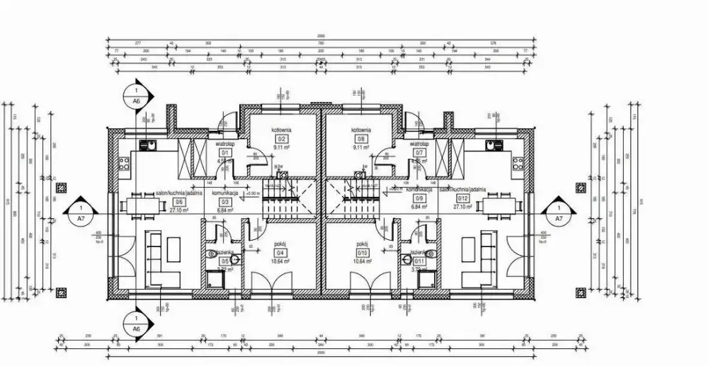
🔹 Powierzchnia całkowita: 149 m²
🔹 Powierzchnia użytkowa: 124 m²
🔹 Stan wykończenia: surowy zamknięty
🔹 Materiał: pustak pianowy, ocieplenie styropianem 20 cm
🔹 Okna: trzyszybowe, 

 
Parter:
Przestronny salon z aneksem kuchennym
Pokój
Łazienka
Kotłownia
Wiatrołap
Piętro:
3 pokoje (jeden z wyjściem na taras)
Łazienka

Poddasze: do zagospodarowania
Media: prąd ( licznik ) studnia, szambo


Działka, na której posadowiony jest ten dom, ma powierzchnię 370 m² – to metraż, który doskonale łączy możliwość aranżacji przydomowego ogrodu, tarasu czy kameralnej strefy relaksu, z jednoczesnym minimalnym nakładem pracy.


Dla osób poszukujących większej przestrzeni życiowej lub inwestycyjnej, istnieje atrakcyjna możliwość zakupu drugiej części bliźniaka, usytuowanej na znacznie większej działce o powierzchni aż 930 m². To propozycja dla klientów, którzy marzą o większym  ogrodzie, własnym placu zabaw dla dzieci, przestrzeni rekreacyjnej, basenie, czy po prostu cenią sobie większy dystans od sąsiednich zabudowań i więcej prywatności.

Dzięki elastycznym możliwościom zagospodarowania i doskonałej lokalizacji na wzniesieniu z panoramicznym widokiem, nieruchomość ta stanowi unikalną ofertę zarówno dla rodzin, jak i inwestorów szukających nietuzinkowego miejsca do życia lub wynajmu.


Zakup obu części to również doskonała propozycja inwestycyjna – dla rodziny wielopokoleniowej lub pod wynajem.

 
Zapraszamy do obejrzenia!


Kontakt w sprawie oferty: Izabela Żak 662 242 891
Oddział Mszana Dolna: 18 33 11 257

Numer licencji pośrednika odpowiedzialnego zawodowo: 2240 Szembek Ewa(Powyższa oferta nie stanowi oferty handlowej w rozumieniu Kodeksu Cywilnego).



Nota prawna

Opis oferty zawarty na stronie internetowej sporządzany jest na podstawie oględzin nieruchomości oraz informacji uzyskanych od właściciela, może podlegać aktualizacji i nie stanowi oferty określonej w art. 66 i następnych K.C. Numer licencji pośrednika odpowiedzialnego zawodowo 2240.

Polecane podobne oferty

Miniaturka oferty
sprzedaż Dom
145.00 m²

649 000 zł

  • 4 pokoje
  • 3 sypialnie
  • 2 łazienki
Miniaturka oferty
sprzedaż Dom
140.00 m²

920 000 zł

  • 7 pokoje
  • 6 sypialnie
  • 2 łazienki
Miniaturka oferty
sprzedaż Dom
150.00 m²

750 000 zł

  • 6 pokoje
  • 5 sypialnie
  • 2 łazienki
Miniaturka oferty
sprzedaż Dom
Miniaturka oferty
sprzedaż Dom
165.00 m²

560 000 zł

  • 4 pokoje
  • 3 sypialnie
  • 2 łazienki
Miniaturka oferty
sprzedaż Dom
150.00 m²

849 000 zł

  • 5 pokoje
  • 4 sypialnie
  • 2 łazienki
Biuro nieruchomości Kraków. Pani Agent.

Zapisz się do newslettera

Szukasz mieszkania, domu lub lokalu, ale nie wiesz co wybrac?

Nasi Agenci są do Państwa dyspozycji. Pomożemy i kompleksowo przeprowadzimy zakup lub sprzedaż:

  • mieszkania
  • domu
  • lub wynajmu lokalu


Wyrażam zgodę na kontakt emailowy oraz telefoniczny