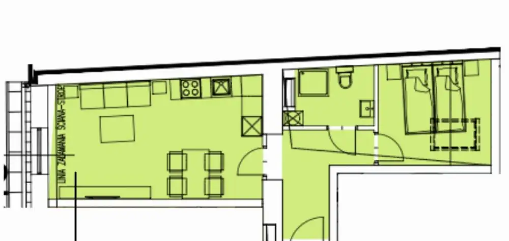
OFERUJEMY PAŃSTWU DO SPRZEDAŻY na Starym Mieście w rejonie Kleparza mieszkanie o powierzchni 74m2, mieszczące się na IV piętrze zadbanej kamienicy z 1938 roku z windą. Składa się z kuchni, trzech pokoi, przedpokoju i łazienki. Kilka lat temu wymienione wszystkie instalacje, wod-kan, gazowa i elektryczna wraz z oknami, na podłogach parkiet. To samo dotyczy całej kamienicy : wymienione piony, wod-kan i gaz, przeprowadzony remont klatki schodowej, instalacja nowoczesnej windy, remont elewacji od strony podwórka, monitoring. Mieszkanie stanowi świetną inwestycje pod wynajem. Układ mieszkania pozwala na dowolna aranżację, ogrzewanie elektryczne ( piece kaflowe z grzałkami ) natomiast nie ma problemu z instalacją ogrzewania gazowego. Do mieszkania przynależy również balkon, miejsce idealnie skomunikowane z resztą miasta, każda krakowska uczelnia znajduje się na wyciągnięcie ręki , dworzec PKP 5 min autobusem, Rynek Główny 10 min spacerem/ 5 min rowerem. W obrębie ul. Długiej obowiązuje strefa parkowania. Doskonała lokalizacja i dobry dojazd w każdym kierunku miasta. Zapraszam na prezentację.
Kontakt; Urszula Bugajska 530 260 261
Biuro Nieruchomości SZEMBEK EWA
GRODZKA 41
Powyższa oferta ma charakter informacyjny i nie stanowi oferty handlowej w rozumieniu Kodeksu Cywilnego oraz innych właściwych przepisów prawnych. Numer licencji pośrednika odpowiedzialnego zawodowo 2240
- Biuro Kraków
- ul. Grodzka 41
- Pn-Pt, 9-17
- +48 604 437 688
Stare Miasto mieszkanie sprzedam
WróćMieszkanie na sprzedaż Kraków
74.00 m²
Stare Miasto/ ok. Kleparz, 74m2, 3 pokoje, IV piętro, winda










Polecane podobne oferty
50.00 m²
1 731 000 zł
- 2 pokoje
- 2 sypialnie
- 1 łazienka
35.00 m²
875 000 zł
- 2 pokoje
- 2 sypialnie
- 1 łazienka
70.00 m²
1 540 000 zł
- 3 pokoje
- 2 sypialnie
- 1 łazienka
40.50 m²
849 000 zł
- 2 pokoje
- 1 sypialnia
- 1 łazienka
56.00 m²
1 060 000 zł
- 2 pokoje
- 2 sypialnie
- 1 łazienka

Zapisz się do newslettera
Szukasz mieszkania, domu lub lokalu, ale nie wiesz co wybrac?
Nasi Agenci są do Państwa dyspozycji. Pomożemy i kompleksowo przeprowadzimy zakup lub sprzedaż:
- mieszkania
- domu
- lub wynajmu lokalu