Skorzystaj z bezpłatnej konsultacji u eksperta kredytowego i sprawdź możliwości kredytowe dla tej nieruchomości w ofertach wielu banków.
Umów się na bezpłatną konsultację Dowiedz się więcej
1 553 440 zł
(29 310 zł/m²)
53.00 m²
Powierzchnia
4
Pokoje
3
Piętro
03.10
Zaktualizowano
Opis nieruchomości
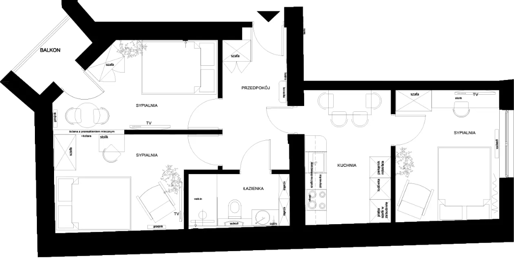
ok. Miodowa, stan deweloperski, 53m2, 3 pokoje, III piętro
OFERUJEMY PAŃSTWU DO SPRZEDAŻY wyjątkowy apartament zlokalizowany w samym centrum krakowskiego Kazimierza w rejonie Placu Nowego. To idealna propozycja dla osób ceniących prestiżową lokalizację, unikalną architekturę i komfort życia w sercu historycznego miasta. Apartament 3 pokojowy o powierzchni 53,20 m2, mieści się na III piętrze. Składa się z kuchni, trzech przestronnych pokoi, przedpokoju, stylowej łazienki i balkonu. W stanie deweloperskim lecz może być wykończony „pod klucz” w wysokim standardzie z dbałością o każdy szczegół. W kamienicy więcej mieszkań o różnym metrażu, studio, 2,3 i 4 pokojowe na różnych piętrach. Cała kamienica przechodzi gruntowną rewitalizację, dzięki czemu każdy szczegół został starannie odnowiony, z zachowaniem oryginalnego stylu kamienicy. Nowa instalacja elektryczna, wodna, kanalizacyjna oraz centralnego ogrzewania
Podłączenie do miejskiej sieci grzewczej MPEC
Klimatyzacja z indywidualnym sterowaniem w każdej sypialni
Instalacja video-domofonowa i monitoring dla pełnego bezpieczeństwa
Nowa sieć komputerowa
Wewnętrzne podwórko z zadbanym zielonym ogrodem – idealne miejsce do relaksu
Nowe okna oraz świeżo odnowiona elewacja zewnętrzna i wewnętrzna budynku. Doskonała lokalizacja i dojazd w każdym kierunku miasta.
Zapraszam na prezentację.
Kontakt w sprawie oferty tel; Urszula Bugajska 530 260 261
Biuro Nieruchomości SZEMBEK EWA
GRODZKA 41
Numer licencji pośrednika odpowiedzialnego zawodowo 2240. Powyższa oferta ma charakter informacyjny i nie stanowi oferty handlowej w rozumieniu Kodeksu Cywilnego oraz innych właściwych przepisów prawnych.
Podłączenie do miejskiej sieci grzewczej MPEC
Klimatyzacja z indywidualnym sterowaniem w każdej sypialni
Instalacja video-domofonowa i monitoring dla pełnego bezpieczeństwa
Nowa sieć komputerowa
Wewnętrzne podwórko z zadbanym zielonym ogrodem – idealne miejsce do relaksu
Nowe okna oraz świeżo odnowiona elewacja zewnętrzna i wewnętrzna budynku. Doskonała lokalizacja i dojazd w każdym kierunku miasta.
Zapraszam na prezentację.
Kontakt w sprawie oferty tel; Urszula Bugajska 530 260 261
Biuro Nieruchomości SZEMBEK EWA
GRODZKA 41
Numer licencji pośrednika odpowiedzialnego zawodowo 2240. Powyższa oferta ma charakter informacyjny i nie stanowi oferty handlowej w rozumieniu Kodeksu Cywilnego oraz innych właściwych przepisów prawnych.
Szczegóły
Sypialnie
3
Łazienki
1
Identyfikator oferty: 3572
Urszula Bugajska
Specjalista ds. sprzedaży i wynajmu mieszkań
Zapytaj o nieruchomość
Podobne nieruchomości
Na podstawie typu, lokalizacji i przedziału cenowego