Sprzedaż Mieszkanie

Kazimierz / ul. Przemyska, 58m2, 2 pokoje, 4 piętro

1 300 000 zł (22 414 zł/m²)
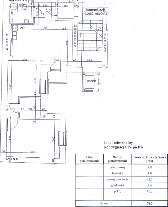
58.00 m²
Powierzchnia
2
Pokoje
4
Piętro
03.10
Zaktualizowano

Opis nieruchomości

Przemyska/Rzeszowska/ balkon, winda, 2 pokoje

OFERUJEMY PAŃSTWU DO SPRZEDAŻY Mieszkanie na Kazimierzu w rejonie ul. Starowiślnej, przy ul. Przemyskiej. Mieszkanie o powierzchni 58,30 m2, mieści się na IV piętrze kamienicy z 1931 roku i  w 2014 roku z windą i BALKONEM ! Mieszkanie urządzone i wykończone w fajnym klimacie z dbałością o każdy szczegół, zrobione dla siebie. Składa się z aneksu kuchennego z salonikiem, pomieszczenia do pracy, sypialni, dużej garderoby, przedpokoju i łazienki z wanną. Na podłodze drewniana deska, okna nowe PCV, drzwi antywłamaniowe. Wysokość pomieszczeń 2,60m. Ogrzewanie dwufunkcyjnym piecem gazowym. Czynsz administracyjny w wysokości 320 zł. kamienica zadbana z ładną klatką schodową. Fajnie działająca wspólnota. Idealne miejsce dla osób kochających klimat Starego Miasta, bliskość Kazimierza i Bulwarów Wiślanych. Doskonała lokalizacja i dojazd w każdym kierunku miasta. Zapraszam na prezentację.

Kontakt: Urszula Bugajska 530 260 261

Biuro Nieruchomości SZEMBEK EWA
GRODZKA 41

Powyższa oferta ma charakter informacyjny i nie stanowi oferty handlowej w rozumieniu Kodeksu Cywilnego oraz innych właściwych przepisów prawnych. Numer licencji pośrednika odpowiedzialnego zawodowo 2240



Szczegóły

Sypialnie
2
Łazienki
1
Identyfikator oferty: 91
Urszula Bugajska

Urszula Bugajska

Specjalista ds. sprzedaży i wynajmu mieszkań

Zapytaj o nieruchomość

Podobne nieruchomości

Na podstawie typu, lokalizacji i przedziału cenowego

Zobacz wszystkie
Top