Dom w stanie deweloperskim z pięknym widokiem

Wróć

Dom w górach na sprzedaż

149.00 m²

Dom w stanie deweloperskim z pięknym widokiem

799 000 zł

5 362,42 zł/m²

Opis nieruchomości

Wyjątkowa nieruchomość z widokiem na góry – oaza ciszy i spokoju w sercu Beskidów

Z przyjemnością prezentujemy ofertę sprzedaży malowniczo położonej nieruchomości w okolicy Suchej Beskidzkiej, w powiecie suskim, województwie małopolskim.

Nieruchomość znajduje się na wzniesieniu, w otoczeniu zieleni, z przepięknym widokiem na okoliczne góry i lasy. To idealne miejsce dla osób poszukujących ciszy, spokoju i bliskości natury, a jednocześnie z dogodnym dojazdem do centrum Suchej Beskidzkiej oraz popularnych miejscowości turystycznych, takich jak Zawoja,

Okolica sprzyja zarówno relaksowi, jak i aktywnemu wypoczynkowi. Teren charakteryzuje się wyjątkowym klimatem – czyste powietrze, śpiew ptaków o poranku i panorama beskidzkich krajobrazów tworzą niepowtarzalną atmosferę, sprzyjającą zarówno wypoczynkowi, jak i całorocznemu zamieszkaniu. W bezpośrednim sąsiedztwie znajdują się liczne szlaki piesze i rowerowe, prowadzące m.in. na Babią Górę – najwyższy szczyt Beskidu Żywieckiego. Zaledwie kilka minut jazdy dzieli posesję od Jeziora Mucharskiego, które latem staje się centrum rekreacyjnym regionu.

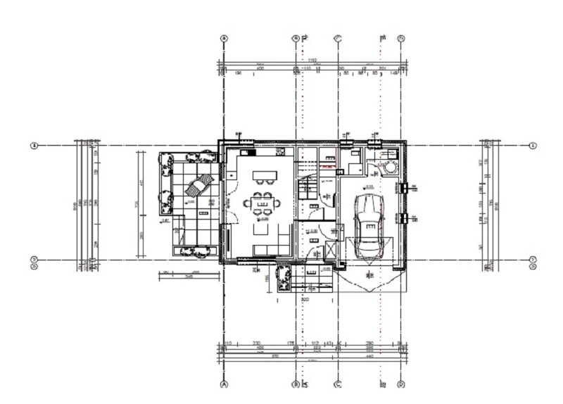
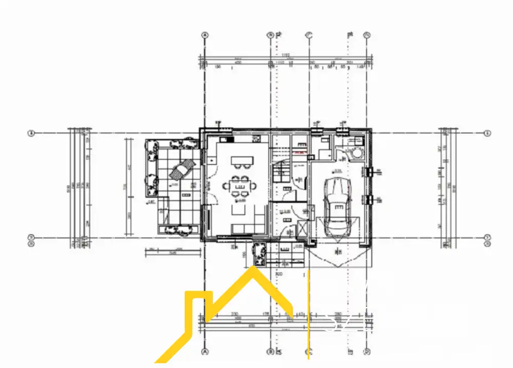
Ta nieruchomość w stanie deweloperskim o powierzchni całkowitej 148,99 m2 , użytkowej 140m2 oferuje wiele zalet i solidnych rozwiązań konstrukcyjnych.


Konstrukcja budynku:
Ściany zbudowane z pustaka Termalica o grubości 24 cm, co gwarantuje dobrą izolację termiczną.
Strop żelbetonowy zapewnia wytrzymałość i stabilność konstrukcji.
Dach pokryty płaską dachówką betonową, ocieplony pianą PUR o grubości 22 cm.
Styropian o grubości 20 cm wzmocniony tynkiem sylikatowo-sylikonowym.
Wykończenie wewnętrzne:
Wylewki betonowe oraz tynki wewnątrz wykonane z mieszanki cementowo-wapiennej.
Posadzki na poziomie parteru izolowane styropianem o grubości 15 cm.
Schody żelbetonowe zapewniają bezpieczny dostęp do piętra.
Okna PCV trzy szybowe (marki Oknoplast / Wiśniowski) w kolorze obustronnym brązowym.
Drzwi zewnętrzne stalowe, garaż w bryle budynku wyposażony w bramę garażową z napędem.

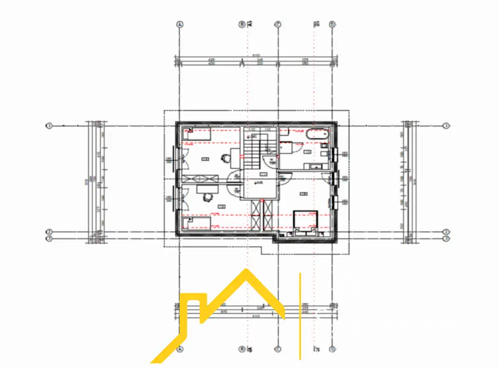
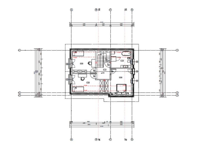
Rozkład pomieszczeń:
Parter:
salon z kuchnią, hol, łazienka, kotłownia, , garaż- jednostanowiskowy
Poddasze: trzy sypialnie, łazienka
Media: prąd, woda ze studni głębinowej, przydomowa oczyszczalnia ścieków ze studnią chłonną
Ogrzewanie budynku - pompa ciepła
Dojazd drogą utwardzoną.

Dom posadowiony na działce 1200m2 , ogrodzony siatką usytuowany w górskim terenie gdzie jest sporo szlaków turystycznych, dzięki którym można urządzać ciekawe wycieczki po Beskidzie Makowskim, ośrodki narciarskie , jezioro Żywieckie i Mucharskie w odległości ok 20 km. Miejsce spokojne i wyjątkowo urokliwe.

Kontakt w sprawie oferty Izabela Żak 662242891;
Oddział Mszana Dolna 183311257. 

Numer licencji pośrednika odpowiedzialnego zawodowo:2240 Szembek Ewa.
Powyższa oferta nie stanowi oferty handlowej w rozumieniu Kodeksu Cywilnego.


Nota prawna

Opis oferty zawarty na stronie internetowej sporządzany jest na podstawie oględzin nieruchomości oraz informacji uzyskanych od właściciela, może podlegać aktualizacji i nie stanowi oferty określonej w art. 66 i następnych K.C. Numer licencji pośrednika odpowiedzialnego zawodowo 2240.

Polecane podobne oferty

Miniaturka oferty
sprzedaż Dom
120.00 m²

689 000 zł

  • 4 pokoje
  • 3 sypialnie
  • 1 łazienka
Miniaturka oferty
sprzedaż Dom
104.00 m²

595 000 zł

  • 6 pokoje
  • 4 sypialnie
  • 2 łazienki
Miniaturka oferty
sprzedaż Dom
450.00 m²

2 200 000 zł

  • 14 pokoje
  • 7 sypialnie
  • 7 łazienki
Miniaturka oferty
sprzedaż Dom
140.00 m²

920 000 zł

  • 7 pokoje
  • 6 sypialnie
  • 2 łazienki
Miniaturka oferty
sprzedaż Dom
148.00 m²

970 000 zł

  • 5 pokoje
  • 3 sypialnie
  • 2 łazienki
Miniaturka oferty
sprzedaż Dom
125.00 m²

670 000 zł

  • 6 pokoje
  • 4 sypialnie
  • 2 łazienki
Biuro nieruchomości Kraków. Pani Agent.

Zapisz się do newslettera

Szukasz mieszkania, domu lub lokalu, ale nie wiesz co wybrac?

Nasi Agenci są do Państwa dyspozycji. Pomożemy i kompleksowo przeprowadzimy zakup lub sprzedaż:

  • mieszkania
  • domu
  • lub wynajmu lokalu


Wyrażam zgodę na kontakt emailowy oraz telefoniczny